Tại sao chúng tôi cung cấp hồ sơ miễn phí?
Với nhu cầu xây dựng nhà xưởng ngày càng phổ biến. Qua thời gian dài cung cấp dịch vụ thiết kế và thi công nhà xưởng, chúng tôi hiểu được sự cần thiết của hồ sơ thiết kế. Thông thường rất khó để tìm hoặc xin được hồ sơ tương tự với kích thước nhà xưởng, nhà công nghiệp có dạng tương tự giống như dự án chúng ta dự định triển khai. Từ hồ sơ thiết kế, chúng ta có thể xem xét được tổng quát hình hài dự án. Xem xét cân đối chi phí cần thiết để đầu tư xây dựng.
Vì thế, chúng tôi cung cấp những bộ hồ sơ kích thước khẩu độ và dạng khung khác nhau. Giúp bạn tham khảo các thông tin của nhà xưởng một cách dễ dàng. Ngoài ra, chúng tôi còn cung cấp báo giá của các hạng mục tại từng thời điểm.
Tất cả đều miễn phí.
Hồ sơ nhà xưởng bạn có thể tham khảo:
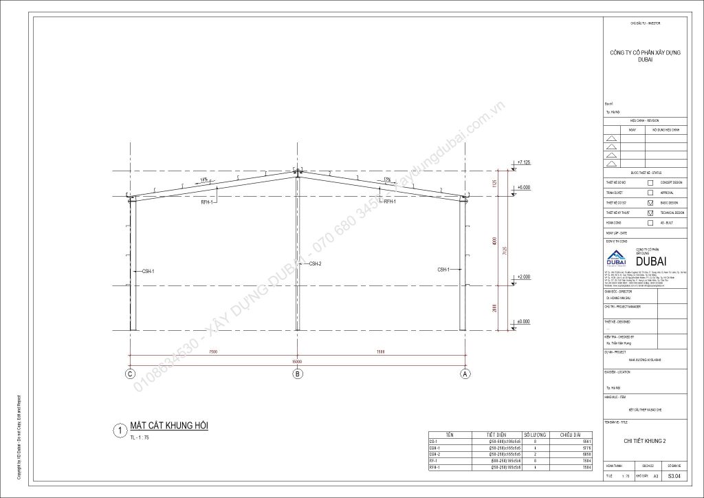
Hồ sơ thiết kế nhà xưởng K15L40H6 tương ứng với diện tích 600m2.
Hồ sơ đầy đủ thông tin kích thước khung, cột, kèo, giằng, xà gồ, …
Hồ sơ đầy đủ thông tin chủng loại vật tư.
Bạn có thể tham trải nghiệm thực tế ảo:
Kiến trúc: https://api2.enscape3d.com/v3/view/3dd41dd1-c0c4-4756-84c2-04c2e77bba7b
Kết cấu: https://api2.enscape3d.com/v3/view/59076e56-4faf-4480-a413-1e1f5c4c9ef2

Dạng PDF đầy đủ:
Thông tin tiến độ, ghi chú:

Bạn có thể tham khảo thêm hàng trăm hồ sơ khác tại đây: https://xaydungdubai.com.vn/ho-so-mien-phi/
Bạn có thể tham khảo cấu tạo các hạng mục chính của nhà xưởng tại đây: https://xaydungdubai.com.vn/cau-tao-nha-xuong-cac-hang-muc-cua-1-nha-thep-tien-che/
Hãy kết nối với chúng tôi để chúng tôi có thể cần tư vấn và báo giá chi tiết hơn.
- Địa chỉ: Phòng 3204-A3, tòa nhà Ecolife Capitol, Số 58 Tố Hữu, Phường Trung Văn, Quận Nam Từ Liêm, Thành phố Hà Nội
- Điện thoại: 070 680 3456
- Email: tuvan@xaydungdubai.vn
HỒ SƠ THIẾT KẾ NHÀ XƯỞNG RỘNG 28M DÀI 40M CAO 6M MIỄN PHÍ!HỒ SƠ THIẾT KẾ NHÀ XƯỞNG RỘNG 30M DÀI 40M CAO 6M MIỄN PHÍ!














[…] HỒ SƠ THIẾT KẾ NHÀ XƯỞNG RỘNG 15M DÀI 40M CAO 6M MIỄN PHÍ! […]
[…] HỒ SƠ THIẾT KẾ NHÀ XƯỞNG RỘNG 15M DÀI 40M CAO 6M MIỄN PHÍ!HỒ SƠ THIẾT KẾ NHÀ XƯỞNG RỘNG 30M DÀI 40M CAO 6M MIỄN PHÍ! […]
[…] Hồ sơ thiết kế nhà xưởng rộng 48m dài 50m cao 7m miễn phí!HỒ SƠ THIẾT KẾ NHÀ XƯỞNG RỘNG 15M DÀI 40M CAO 6M MIỄN PHÍ! […]